ST. TIMOTHY’S EPISCOPAL CHURCH

PHILADELPHIA, PA (ROXBOROUGH)

RENOVATIONS

 

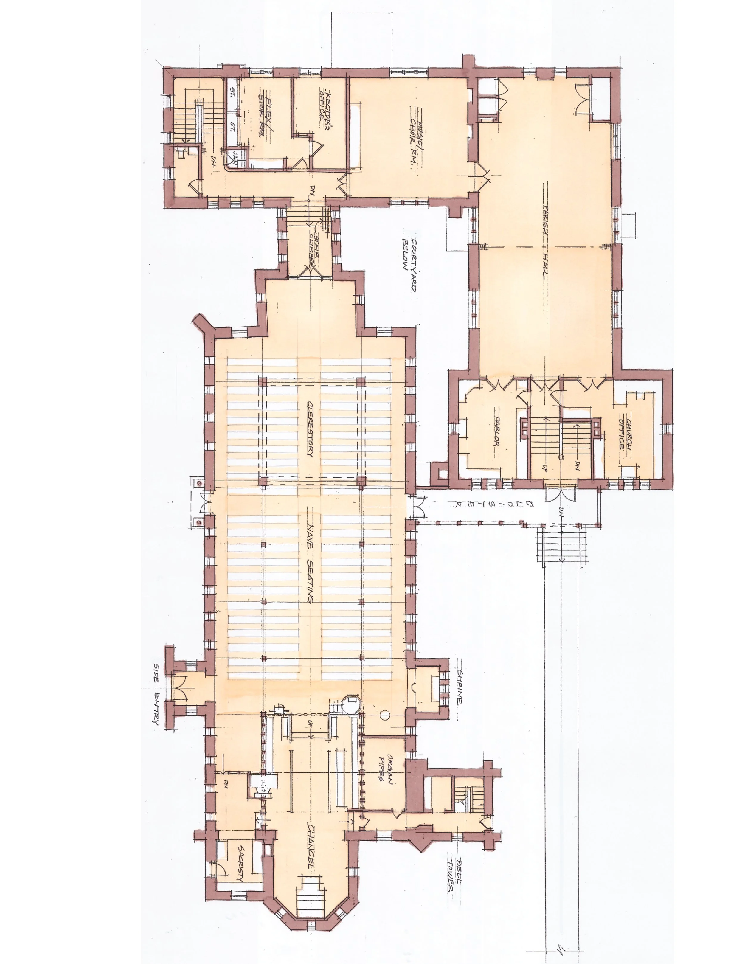
St. Timothy’s Episcopal Church is a historic building and property in Roxborough, PA.   GKO Architects was engaged to prepare a Facility Assessment and Master Plan study as a “Vision of the Future” for this congregation. The first step was to prepare a detailed Property Condition Assessment which identified needed repairs and proposed renovations. The second part of the study involved the creation of a Master Plan to improve accessibility for the congregants while also enhancing the building’s interior.

Previous
Previous

CHURCH OF THE HOLY SPIRIT

Next
Next

OUR LADY OF PERPETUAL HELP PARISH