UPPER DUBLIN TOWNSHIP BURN BRAE FIRE STATION

FORT WASHINGTON, PA

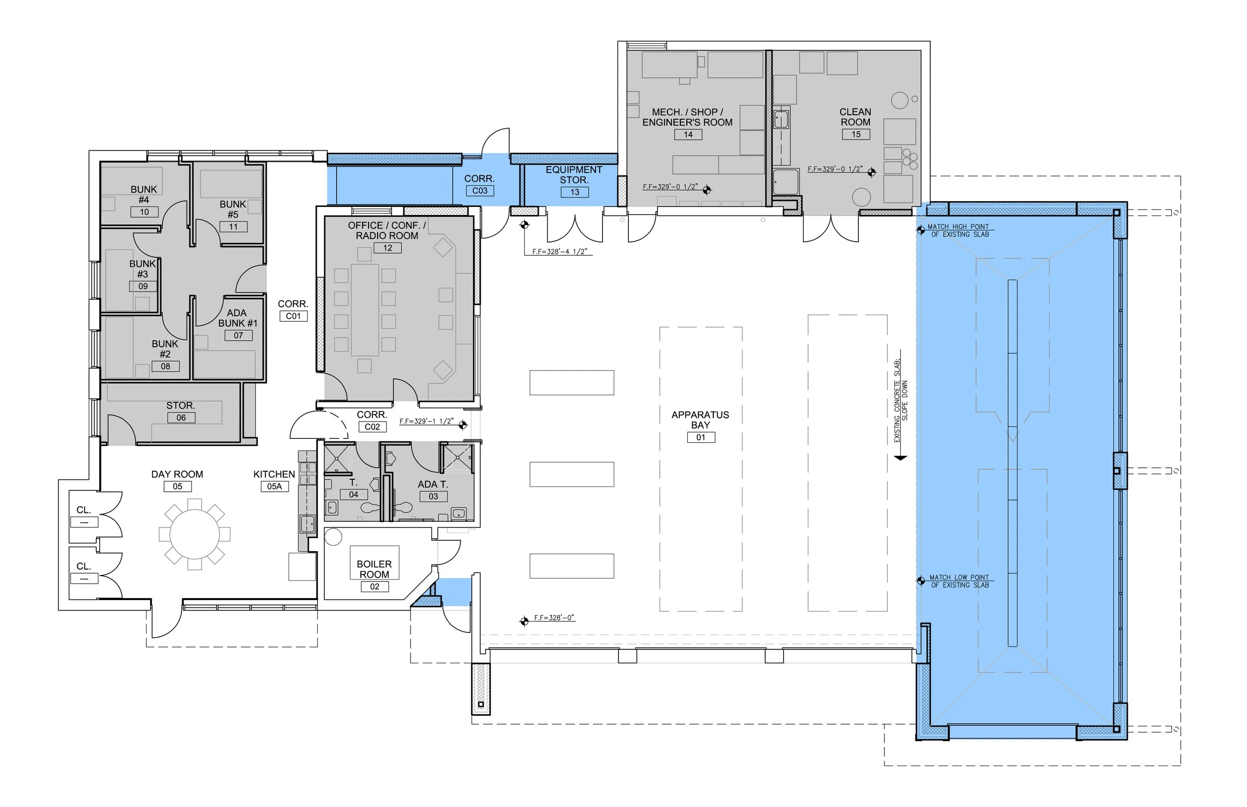
MAJOR RENOVATION + ADDITIONS

 

In conjunction with Upper Dublin Township and the Fort Washington Fire Company, GKO Architects planned and designed the Additions and Renovations to the Burn Brae Fire Station. Renovations included improvements to the interior of the original Fire Station and a new addition to the street-side of the building, which provided a new equipment bay with front and back garage-bay doors.

A significant effort was made to stylistically tie-in the new addition with the original firehouse built in the late 1970’s. Materials, colors, and proportional massing were all utilized to achieve the harmonious integration between old and new parts of the building. The new addition provides a refreshed image along Susquehanna Road.

Back to Projects

Previous
Previous

WARRINGTON TOWNSHIP POLICE STATION

Next
Next

NEW LONDON TOWNSHIP UTILITY & SALT STORAGE FACILITY