UPPER DUBLIN TOWNSHIP

FORT WASHINGTON, PA

TOWNSHIP-WIDE MASTER PLAN

 

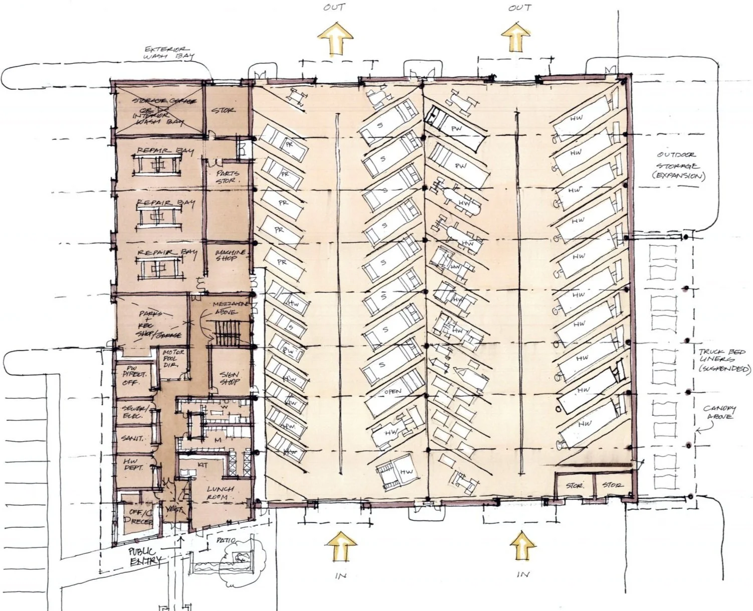
GKO Architects prepared a comprehensive Master Plan Study for Upper Dublin Township’s “Civic Campus”. The scope of work included an assessment of the Township’s existing facilities and properties (including parks, etc.), and schematic design for multiple new construction, additions, and renovations necessary to meet the Township’s future needs.

Our firm provided multiple scenarios that ranged from minor renovation addition projects to major new construction projects including the construction of a new Public Works facility and a new Library. The Master Plan also considered options to expand facilities at their existing campus versus moving some of their program off-site to one of their other properties.

Back to Projects

Next
Next

ARDMORE AVENUE COMMUNITY CENTER + POSITIVE AGING IN LOWER MERION SENIOR CENTER